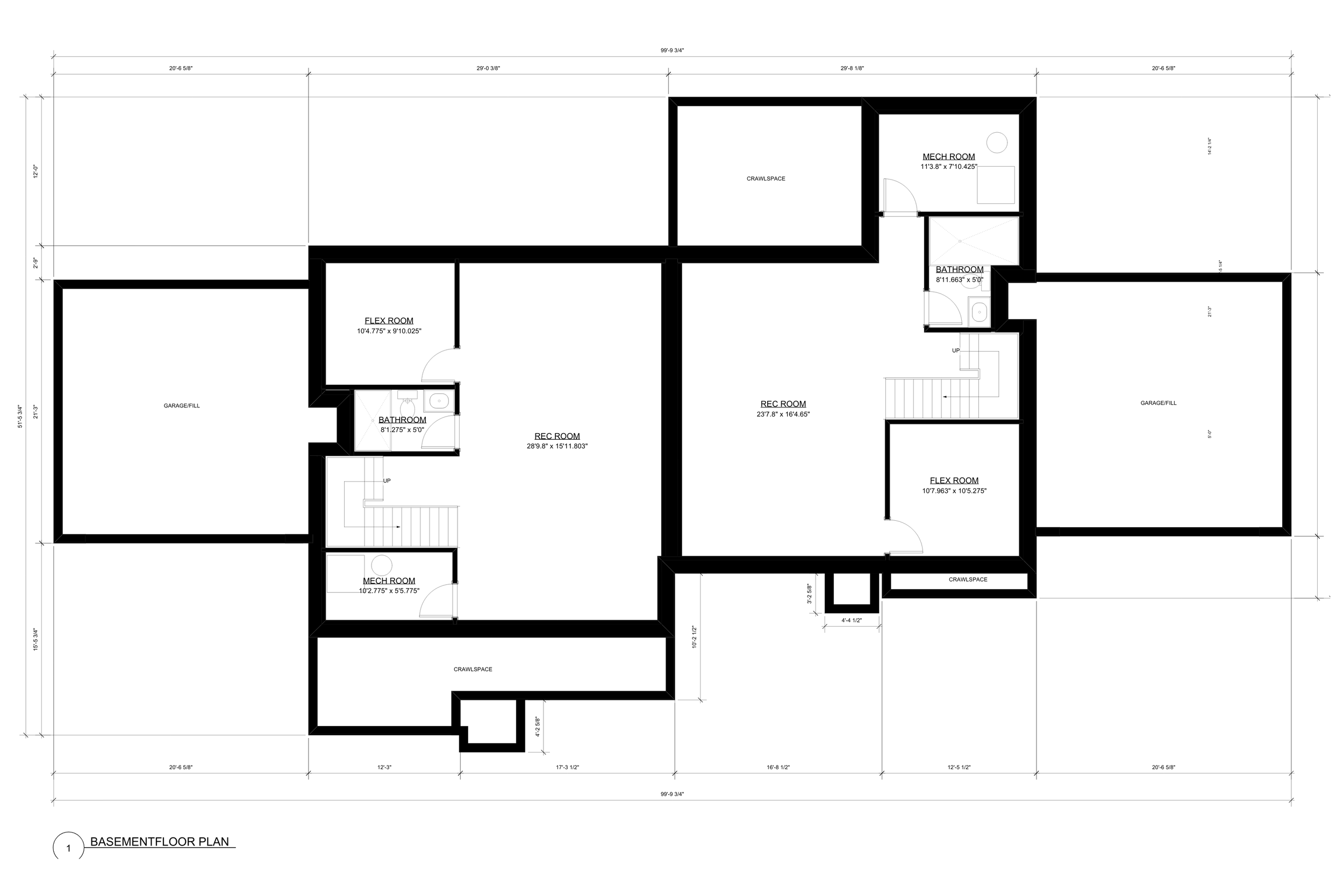
Edgar St.Summit, NJ Specs & Details: Plans View fullsize View fullsize View fullsize View fullsize View fullsize View fullsize View fullsize View fullsize Contact us.thepricegroupnj@gmail.com973-255-7534357 Springfield AveSummit, NJ 07901